El antiguo Monasterio de Santa María de Moreruela, era un impresionante monasterio cisterciense que se encuentra a tan solo 36 Km de Zamora. Actualmente solo se conserva parte de este monasterio que fue uno de los primeros de la orden del cister y de los más influyentes de España.

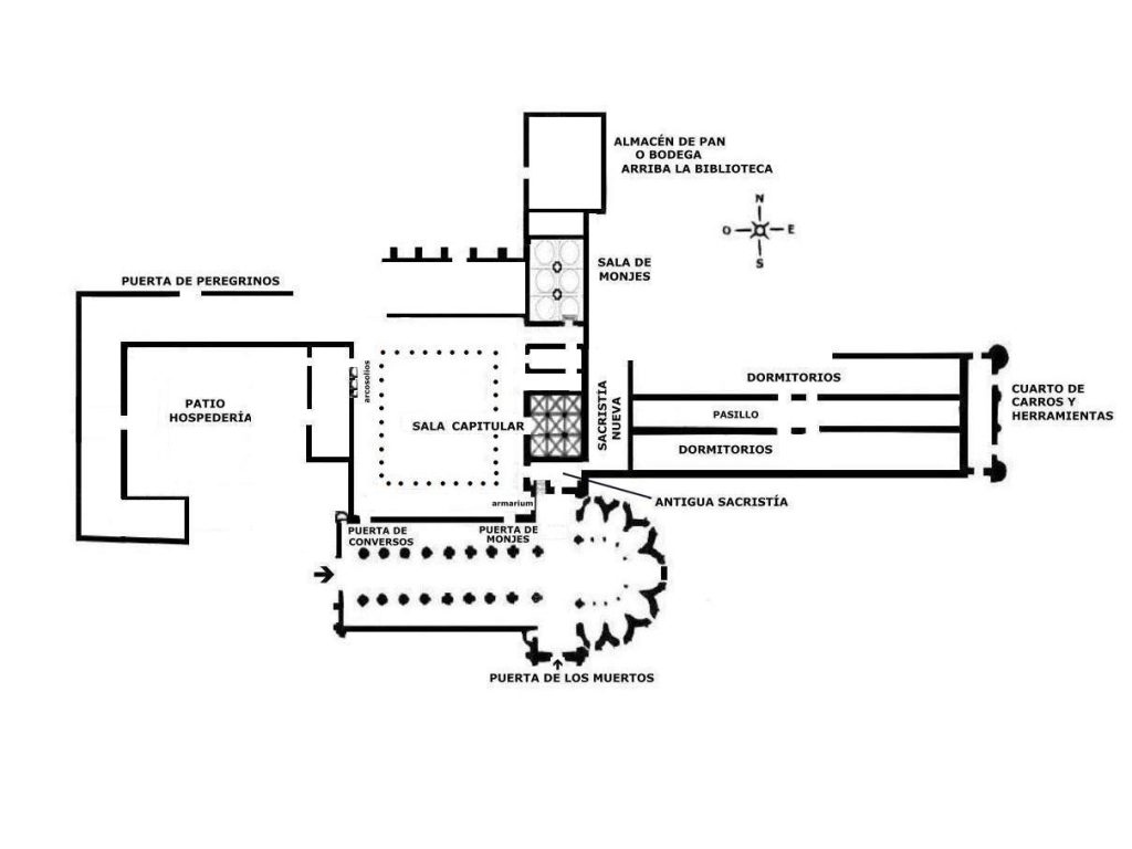
Mapa del Monasterio de Santa María de Moreruela
El Monasterio de Moreruela se encuentra a 36 Km de Zamora ciudad y unos 3 Km de Granja de Moreruela
Historia del Monasterio de Santa María de Moreruela
Durante mucho tiempo se consideró que el Monasterio de Moreruela fue el primer monasterio cisterciense de España, datado en el año 1131, pero investigaciones recientes indican que posiblemente su fundación fue entre 1158 y 1162 por lo que pasaría a ser el tercer monasterio cisterciense por detrás de Santa María de Fitero en Navarra (de 1140) y de Santa María de Sobrado en Galicia (de 1142).
Este monasterio fue la continuación de otro fundado por San Froilán y San Atilano en las cercanías del río Esla bajo la monarquía asturiana y que tuvo que ser abandonado por las continuas incursiones de los musulmanes.
En el año 1162 Alfonso VII, puso a disposición de los monjes blancos del Císter, conocidos en la Edad Media como los Monjes Blancos, llamados así porque su hábito era una túnica blanca con un escapulario negro, con el propósito de repoblar la zona que se iba ganando a los musulmanes.
La comunidad alcanzó su mayor auge a finales del siglo XIII debido a las importantes donaciones que recibían de la realeza, nobles y campesinos.
En 1808, durante la Guerra de la Independencia, fue ocupada tanto por las tropas nacionales como por las francesas.
En 1835 los 12 monjes que quedaban fueron expulsados definitivamente por la desamortización de Mendizábal.
Fue catalogado como Monumento Histórico Artístico en 1931 y en 1994 lo adquirió la Junta de Castilla y León con el fin de frenar el estado ruinoso del Monasterio.

El Monasterio de Moreruela

La iglesia
La iglesia fue el primer edificio en construirse en 1162, de estilo románico, con elementos de transición al gótico, siguiendo el modelo de Cluny.
Es de planta en cruz latina con tres naves muy altas de nueve tramos con cubierta con bóveda central de cañón apuntado.
La orden del Císter se caracterizaba por la simplicidad ornamental, es decir se construían sin esculturas, ni pinturas de ningún tipo, con ventanas de vidrios transparentes y sin torres ni campanarios de gran altura.
En la iglesia recibieron sepultura, entre otros, Fernán Pérez Ponce de León, (nieto del rey Alfonso IX de León), quien fue señor de la Puebla de Asturias.

Dormitorio de los monjes
Se encuentran en la primera planta, encima de las dependencias laterales del claustro y de la sala capitular.
Hay 2 escaleras por las que se puede acceder:
– la escalera de maitines, a través del transepto de la iglesia, que servían para acudir directamente a la oración al levantarse por la mañana.
– la escalera de día, que se comunicaba con el claustro, que las utilizaban para el resto del día.
En el dormitorio los monjes descansaban hasta el toque de maitines, que era la hora más temprana cuando los monjes se levantan. En verano que las jornadas eran más largas, ocasionalmente se acostaban a mediodía.
Las dependencias en los monasterios del Císter se encontraban separadas en dos, los monjes habitaban junto a la iglesia y los conversos en otras dependencias más alejadas de la iglesia. Ambas comunidades se comunicaban mediante el claustro: un espacio común a ambos.

Dormitorio de Conversos
Los monjes conversos eran los monjes que se encargaban de los trabajos manuales como la gestión de cultivo, cocina y otros quehaceres, mientas que los monjes se dedicaban a los orar y estudiar.
El dormitorio de conversos se construyó similar al de los monjes en la primera planta del lado Oeste al claustro. Se accedía a través de una escalera de madera que comunicaba con el claustro y estaba situado encima de las dependencias de la cilla del monasterio. La escalera de madera comunicaba con el claustro, pero no con la iglesia.
El Claustro
El claustro unido al transepto de la iglesia en lado norte, es de planta casi cuadrada (25 x 35 m) con 2 accesos a la iglesia:
– la puerta de monjes que es la más cercana a la capilla
– la puerta de conversos que es la más alejada de la capilla.
El claustro era el centro de la vida del interior del monasterio, desde su pasillo se tenía acceso al resto de las dependencias del Monasterio de Moreruela.

Sala capitular

La sala capitular era el espacio de mayor importancia en el monasterio después de la iglesia. En ella se reunían los monjes para recibir los trabajos a desarrollar por el abad, cada monje tenía una misión que realizar, los cocineros a la cocina, la mayoría al huerto y si era invierno se dirigían a la sala de monjes y allí realizaban tareas de molienda, de desbrozado, etc. En el perímetro interior de la sala se situaban los asientos de los monjes y presidiendo el del abad.
La sala capitular es de planta cuadrada, con cuatro columnas centrales y cubierta de bóvedas de ojiva con nervios de piedra.
Bajo el suelo de esta sala se encuentran las tumbas de algunos abades que regentaron el Monasterio de Moreruela. También se ha encontrado en la pared norte de la sala capitular una inscripción que menciona un enterramiento de un señor de comienzos del siglo XIII y su hijo: «Hic iacet Pelagius Tabladelli et hic filius eius Petrus Pelagii»
Sala de los monjes
La Sala de los Monjes es la sala que se utilizaba no sólo como estancia, sino como “auditórium” o “scriptórium”, el lugar donde se escribían y copiaban los libros o documentos.
Es una sala rectangular de 14 x 10 m, dividida en 2 naves con 2 pilares centrales, que soportan arcos apuntados en sentido longitudinal y de medio punto en sentido transversal, sobre los que van montadas 6 bóvedas.
Originariamente, esta sala tenía 4 puertas de acceso:
- al huerto que hay en la parte posterior del monasterio
- la otra daba al patio interior
- a las letrinas
- al calefactorium (que se reservaba a los monjes más ancianos o débiles que necesitaban de un lugar templado y caldeado).

El locutorio
El locutorio es donde los monjes podían hablar.
El Refectorio
A la hora de la comida se reunían todos en el refectorio, presidía el abad rodeado por los más ancianos de la comunidad. En uno de los muros se situaba un púlpito en alto para leer las sagradas escrituras mientras se comía.
El refectorio es de planta rectangular perpendicular al claustro. Se ubicaba entre el calefactorium y la cocina. Actualmente desaparecido.

Cilla
La cilla era una sala rectangular que servía de almacén y era atendida por los monjes conversos.
Hospedería del Monasterio de Moreruela
Traspasando al otro lado del claustro por el pasaje de conversos se encuentra la hospedería del Monasterio, que era el lugar donde se hospedaban los religioso o seglares que venían de paso. La hospedería funcionó desde 1252.
También debieron existir otras construcciones como fue un hospital, un albergue de peregrinos, una fragua, un horno, un molino y una botica.

Hasta aquí el post del Monasterio Cisterciense de Moreruela, esperamos que te sea útil para tu próximo viaje, o entre en tu lista de lugares pendientes a visitar.
Si te apetece, puedes comentar tu experiencia del Monasterio de Moreruela en los comentarios.
Te esperamos en nuestro próximo post!
¡No olvides seguirnos en nuestras redes sociales,
donde podrás encontrar más fotos y/o más videos!!!!

Datos Prácticos del Monasterio de Moreruela
En la comarca de Tierra de Campos, (Zamora)
Castilla y León
Mejor época para viajar: 😃 primavera, 🥵verano, 😃otoño, 🥶invierno
Cómo llegar al Monasterio de Moreruela, en Granja de Moreruela:
- 🚗 En coche, Por la A66, coger la salida Granja de Moreruela y seguir por la carretera N-630 unos 4 Km.
Aparcamiento: Delante mismo hay un parking de tierra gratuito.
Horario: Lunes y martes cerrado.
- De abril a septiembre, de 10 a 14 h y de 16 a 20:30 h.
- De octubre a marzo, de 11 a 17:30 h.
La entrada al Monasterio de Moreruela es gratuita
Hotel en Zamora: Escoge tu alojamiento al mejor precio aquí.
Seguro de Viaje: No olvides contratar tu seguro de viaje, por ser nuestro lector, tendrás un 5% de descuento aquí.
